Click on the image above to view the full gallery.

Hickory

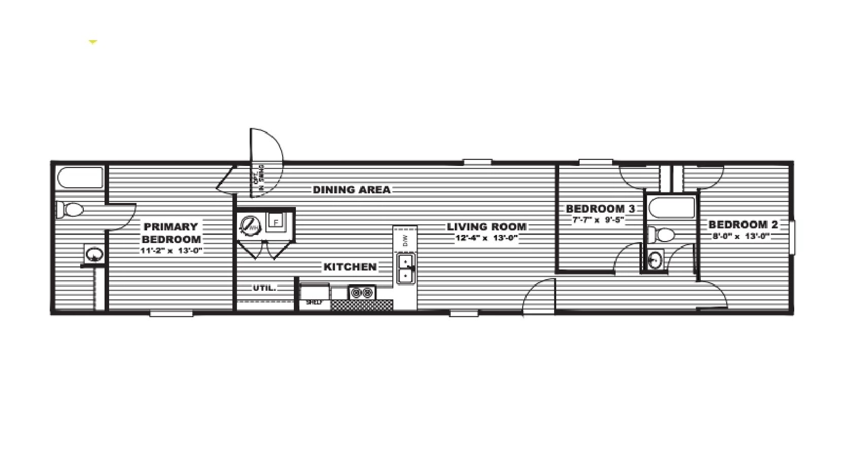
The best priced brand-new 3 bedroom in the state of Louisiana! Priced under 65k, this home features an open floorplan, dining table space, linoleum flooring through-out, black kitchen appliances and a price that cannot be beat- this home is PERFECT for any budget! Order yours today.

Property Details

3 Bedrooms
2 Bathrooms
14 x 70

Floor Plan

Virtual Tour

Inquire now

Similar Homes

Mobile Homes

Tags